wardever.com

apartment for rent

301-303 e 43rd street

kansas city Missouri 64111

historic colonnade six plex

southmoreland neighborhood

this historic colonnade six plex apartment building, built circa 1922, is located on the southeast corner of 43rd & mcGee in the southmmoreland neighborhood of Kansas City, Missouri. The building is within walking distace of the country club plaza, westport, the nelson atkins museum, the kemper museum, and the kansas city art institute.

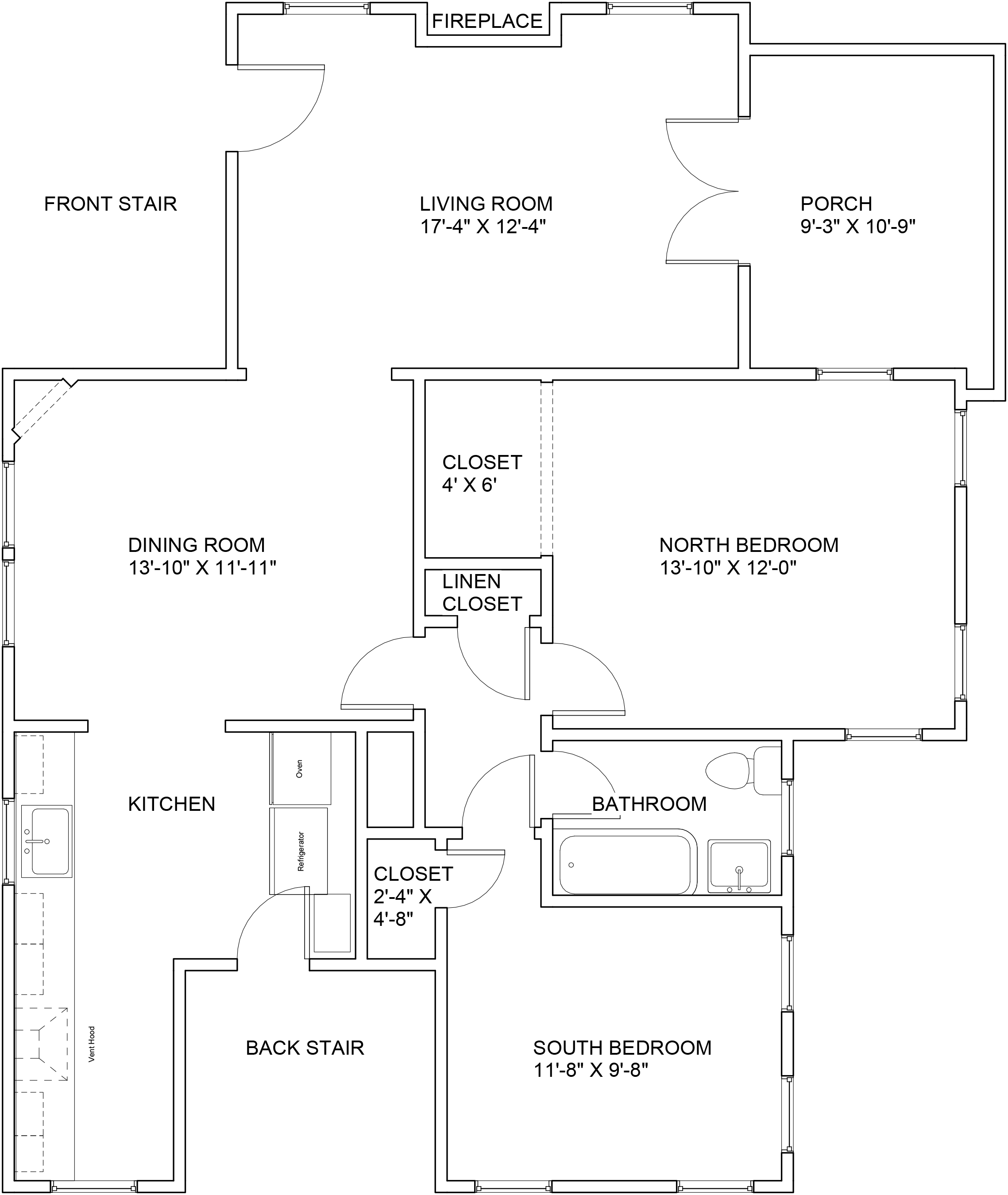
The building has been completley updated with new plumbing, electrical, and central heating & air conditioning. Each apartment features refinished hardwood floors in the Living room, Dining room, and gallery hallway. woodwork is refinished where avaiable. The living room has a gas fireplace and access to the front porch.

The bedrooms are carpeted with large walk in closets. All windows are double insulated glass with white aluminum mini blinds. the kitchens are all white with European styled contemporary cabinets, corian countertops, 18 CF refrigerator with ice maker, gas range, microwave, dishwasher, disposer, and access to the back porch and stairway.

floor plan

Contact Information:

Ward Everhart

ward@wardever.com

816-931-5145

 wardever.com

apartment for rent

1101 w 49th street 2nd floor

kansas city Missouri 64112

historic west plaza duplex

west plaza neighborhood

this historic duplex, built circa 1922, is located on the southwest corner of 49th & jarboe in the west plaza neighborhood of Kansas City, Missouri. The duplex is within walking distace of the country club plaza. jarboe is 2 blocks west of the plaza and lined with stately duplexes. this was one of the first areas built to support the plaza.

The duplex has been completley updated with new plumbing, electrical, and central heating & air conditioning. the second floor 2 bedroom, 1 bath apartment features refinished stained hardwood floors throughout, a screened in porch and a gas fireplace. The living room, master bedroom and porch all have cealing fans.

The master bedroom has a large walk in closet. The 2nd bedroom is more suited as an office or den. the kitchen is all white with European styled contemporary cabinets, corian countertops, kitchen aid stainless steel french door refrigerator, wall oven and dishwasher, with matching gas cooktop, overhead exhaust, and microwave.

available apartments: none

floor plan

Contact Information:

Ward Everhart

ward@wardever.com

816-931-5145